
Vi leverer over hele landet
-Det anbefales å være tidlig ute med prosjektering av ventilasjon ved oppføring av nybygg eller rehabilitering ifht. planlegging mot andre fag og tidsriktig levering.
Alt du trenger å gjøre er å fylle ut kontaktskjemaet vårt oppe til høyre så tar vi kontakt med deg.
Etter opprettet dialog vil vi så raskt vi kan gi deg et tilbudet som inkluderer:
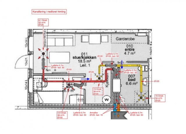
- prosjektering av byggventilasjon innenfor tiltaksklasse 1, med ett anlegg for hver branncelle.
Ventilasjonsanlegget dekker ventilasjonsbehovet innenfor boenheten dersom ikke annet er spesifisert. Prosjekterende innehar sentral godkjenning.
- Ventilasjonsaggregat med roterende varmegjenvinner.
- Alle rørdeler og komponenter anlegget trenger.
- Trykkvakt for kjøkkenventilator.
- Enkel monteringsanvisning.
- Innreguleringsanvisning.
- Gratis support.
Prosjekteringstjenestens saksgang:
- Ved aksept av tilbud vil tegninger sendes til prosjektering.
- Det opprettes dialog og gjennomgang med prosjektør.
- Du får mail med utkast på tegning, med mulighet for å gjøre justeringer(inntil 30min etter første utkast).
- Prosjektering omfatter FDV dokumentasjon av ventilasjonsdata, kontrollplaner og tegninger i plan og 3D.
- Når du har godkjent tegninger vil evnt. vareleveranse pakkes og sendes.
Du står fritt til å velge leverandør til din prisforespørsel, spesifiser dette om ønskelig. Prosjekterende innehar sentral godkjenning.
Vi fører også EcoNordic W4 og WH4 inneklimasentralene fra Flexit for helintegrert ventilasjon,varme og tappevann i ett.
Radon: Sjekk radonforekomst i ditt område: NGU. Balansert ventilasjon er et effektivt tiltak mot radon.
Leveringstid komplett tilbud: normalt 2-7 dager.
Befaring og installering kan avtales for kunder i bergen og omegn.